Hirsikehikko, Vierasmökki Rento Max, 70x145

5198 € (Hirsitoimitus 70x145)

Lisätarvikkeiden hinnat myyntipalvelun kautta
(eli ovi- ja ikkunatoimitus, muun puutavara, vesikate ja mahdolliset eristyspaketit)

(Osalla tuotesivuista voi olla lueteltuna aiempia toimitussisältöjä, vaikka lähtöhintaan kuuluukin vain hirsitoimitus)

Lyhyt tuotekuvaus:

Suositun Rento tuotesarjan tyylinen Vierasmökki. Kerrosala 15.9 m2.

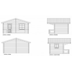
Vierasmökki Rento Max

Asiakaskohtainen muutosmalli saunarakennuksesta Rento Max. Mallin väliseinästä on jätetty rakennukseen tilaa jakava osa. Ikkunat on piirretty ja asemoitu uudelleen vierasmökin käyttötarkoitusta ja ulkoasua varten. Mallista tuli niin tyylikäs, että tästä tehtiin oma tuote.

Mallista on asiakkaiden pystyttämänä jo useita eri versiota, joista kahdesta on lisätty tuotesivulle valokuvia. Malli soveltuu hyvin sekä loivaan rinteeseen, että tasaiselle. Loivaan rinteeseen on tehty huopakattototeutus ja tasamaalli peltikattoinen versio.  Loivaan rinteeseen rakennettuu huopakattomalliin tehdyt portaat ovat asiakkaan toteuttamia eivätkä ne ole mukana toimitussisällössämme.

Toimitussisältö alkaa pelkästä hirsikehikosta. Ovi- ja ikkunapaketin voi lisätä tilaukseen valikosta. Lattia- ja kattomateriaalit vaihtelevat paljon asiakaskohtaisesti, joten nämä kannattaa tilata myyntipalvelustamme.

Lähtöhinta sisältää hirsikehikon ja suunnittelun.

Ovi- ja ikkunapaketti, lisätilaus:

  • 8x19 ovi, lukkorunko, puuvalmis, ei heloja eikä lukkopesää, 6-ruutuinen irtiristikko
  • 8x8 ikkuna, puuvalmis, 2K-eristyslasi, avattava
  • 12x12 ikkuna, puuvalmis, 2K-eristyslasi, avattava
 

Muut puutavarat, yleistä toimituslaajuuksista

Lattia- ja kattomateriaalien toimituslaajuutta voit vaihtaa myyntipalvelumme kautta. Perustoimitus auttaa kuitenkin hahmottamaan kustannuksia ja on lisäksi useaan tilanteeseen juuri oikea toimituslaajuus.

Lattiapaketti, puuvalmis, eristämätön

Terassi:

  • Terassilauta 28x95, painekyllästetty
  • Terassin runko, 48x98 C24
 

Tuvan lattia, eristämätön puulattia

  • Lattialauta 28x95 ponttilauta
  • Lattianiskat 48x98 K600
  • Lattialistat
  • altijaniskat 48x148 C24, 2 kpl
 
Kattopaketti, puuvalmis, eristämätön
 

Huopakattorakenne, sisältää eristämättömän katon puutavarat.

  • Huopakaton aluslaudoitus, ponttilauta
  • Kattoniskat 48x148 K600
    • Jaottelu löytyy piirrettynä tuotekuvista
  • Otsalaudat 20x120 HS kuusi, 2 kpl / lape
  • Sisäkaton panelointi
  • Kattolistat
  • Terassiosan katon muodostaa kattoniskat ja alapuolelta näkyvä ponttilauta

Muut puutavara:

Sisältyy toimituslaajuuteen kun tilataan sekä lattian että katon puutavarat.

  • Ovien ja ikkunoiden pielilaudat

Mahdolliset lisätarvikkeet, myyntipalvelun kautta lisätilauksena

Katon eristys ja vesikate: 
 
Vesikate ja mahdollinen eristysmateriaali (myyntipalvelun kautta lisätilauksena)
 
  • Kattohuopa, musta (12 kpl 3m2 paketteja tai vastaava määrä)
  • Aluskermi (3 pakettia Katepal Xtrabase tai vastaava määrä vastaavaa tuotetta)
  • Räystäs / harjakaista, huopa,  2 pakettia
  • Mineraalivilla 100 mm
  • Ilmansulkupaperi
 
Lattian eristysmateriaalit
Mahdollinen eristysmateriaali (myyntipalvelun kautta lisätilauksena).
  • Mineraalivilla 100 mm
  • Tuulensuojalevyt 12 mm
  • Tuulensuojalevyjen tukilaudoitus

Asiakkaan hankittavia tarvikkeita

Seuraavat tarvikkeet eivät ole mukana tavanomaisissa Nettihirren toimituslaajuuksissa vaan ne tulee hankkia itse.

  • Oven lukkopesä / helat
  • Muut erikseen luokittelemattomat rautakauppatarvikkeet (naulat, ruuvit, kattokulmat, palkkikengät)
  • Perustustarvikkeet
  • Pintakäsittelymateriaalit

Yleistä tietoa toimituksesta

Tuote valmistetaan aina tilauksesta. Tilauksen voi tehdä joko verkkokaupan kautta automaattisesti, jolloin maksu tapahtuu verkkopankkitunnuksilla. Myyntipalvelun kautta tilatessa tuote laskutetaan tavanomaisilla laskuilla. Toimitusaika keskimäärin 4-8 viikkoa, sesonkiaikoina mahdollisesti myös pidempi.

Rahdin kustannus riippuu toimitusosoitteesta. Kuljetukseen käytetään pääosin Kaukokiito Oy:tä ja laskutus asiakkaalle perustuu toteutuneeseen kuljetuslaskuun. Toimitustavat voidaan valita joustavasti noudosta aina nosturikalustolla varustetulla kuorma-autolla tapahtuvaan tonttitoimitukseen asti.

Lisätiedot

log_profile
70x145
log_meters
397.8
kerrosala
15.91
3DS_malli
rento-m-aitta

Hirsitoimituksen sisältö

Nettihirren kaikki rakennukset on mahdollista tilata myös pelkkänä hirsitoimituksena. Hirsitoimitukseen kuuluu aina tavanomainen suunnittelu ja itse hirsitoimitus

Suunnittelu

  • Rakennuslupakuvista seuraavat:
    • Julkisivukuvat
    • Leikkauskuva
    • Pohjakuva
  • Perustuspilareiden sijoittelu pilariperustukselle
  • Seinäkohtaiset hirsikuvat
  • Pystytysohjeet

Asemapiirustuksen teko ja mahdolliset maaperään liittyvät perustussuunnitelman jäävät asiakkaan vastuulle.

Hirsitoimitus 70x145 höylähirsiprofiilille

  • Valmiiksi salvostetut hirret 70x145 höylähirrestä ristinurkkasalvoksilla
  • Hirret on katkottu määrämittoihin suorakulmaisin päin
  • Päätykolmioiden viisteet ja hirsien mahdolliset koristeviisteet tehdään työmaalla
  • Sisältää tarvittavat poraukset vaarnatapeille ovien ja ikkunoiden reunoihin rakenteen salliessa
  • Tarvittavat vaarnatapit esiporauksiin
  • Tarvittavat kierretangot ja niille poraukset
  • Jos rakennuksessa on pitkiä hirsiä (yli 8m), tehdään hirsien jatkokset salvosten sisään työmaalla

Hirsitoimitus ei sisällä lueteltujen tarvikkeiden lisäksi muita osia, kuten nauloja, ruuveja tai perustustarvikkeita. Ovet ja ikkunat, muu puutavara ja muut tarvikkeet tilataan lisätilauksena verkkokaupan valikoista tai erikseen lisätilauksena myyntipalvelustamme.

Hirret pakataan muoveihin ja toimitukset ovat kevyesti säänkestäviä lyhytaikaista ulkosäilytystä varten. Pidempiaikaista säilytystä varten niput on suojattava erikseen

Osassa 70x145 hirsiprofiilin suunnitelmia rakennukset on suunniteltu ilman karauria. Varmista myyntipalvelusta rakennuksen tekninen toteutustapa

70x145 hirsiprofiilien toimituksiin sisältyy rahti Kaukokiidon terminaaliin Vantaalle. Terminaalista eteenpäin muodostuvat rahtikulut veloitetaan asiakkaalta toteutuneen kustannuksen perusteella läpilaskuna kertoimella 1.1


3D Malli

Rakennuksesta löytyy 3D-malli, jota voit pyöritellä ja tarkastella vapaasti. Voit myös avata mallin omaan ikkunaan alla olevasta linkistä.
Avaa 3D-malli omaan ikkunaan.


Kehikon hirsimäärä

Kehikossa on tällä hetkellä nykyprofiililla hirsiä 397.8 metriä.

Jos kaikki hirret asetettaisiin yhtenäiseksi seinäpinnaksi, syntyvän seinäpinnan koko olisi neliöinä 52.51 m2. Tätä neliömäärää käytetään kustannusten arvioimisen lähtökohtana tilanteissa, joissa hirsikehikko halutaan hankkia erilaisesta hirsiprofiilista.

Hirsikehikon arvioidut hinnat vaihtoehtoisille hirsivahvuuksille

Rakennuksemme voidaan toteuttaa myös erilaisista hirsivahvuuksista. Tämän rakennuksen hirsikehikon hinta olisi ollut eri hirsiprofiilien ja nurkkatyyppien kohdalla karkeasti laskettuna seuraava:

58 mm massiivihirsi (58x145)
  • 3938 euroa ristinurkkasalvoksella.

70 mm massiivihirsi (70x145)
  • 5198 euroa ristinurkkasalvoksella.
92 mm massiivihirsi (92x170)
  • 6721 euroa ristinurkkasalvoksella.
90 mm lamellihirsi (90x195)
  • 7404 euroa ristinurkkasalvoksella.
  • 8144 euroa lohenpyrstösalvoksella.
136 mm lamellihirsi (136x244)
  • 12497 euroa ristinurkkasalvoksella.
  • 13747 euroa lohenpyrstösalvoksella.
204 mm lamellihirsi (204x244)
  • 17066 euroa ristinurkkasalvoksella.
  • 18772 euroa lohenpyrstösalvoksella.

Vaihtoehtoisten hirsivahvuuksien hintojen arvio perustuu oletukseen, että hirsivahvuuden muutos ei vaikuttaisi tarvittavaan hirsimäärään seinäneliöinä laskettuna.

hirsiprofiilin muuttuessa rakennusta joudutaan kuitenkin tavanomaisesti hieman muuttamaan. Muutoksia voi syntyä esimerkiksi seinäkorkeuksiin, kattokulmiin, kantavien rakenteiden vahvuuksiin ja terassiosien muotoiluihin. Arviohinnoissa ei ole huomioitu myöskään muita tarvikkeita, kuten joissakin hirsikehikoissa tarvittavia liimapuupalkkeja tai pilareita.

Tästä syystä arvioidut hinnat ovat suuruusluokaltaan oikeita, mutta hirsimäärän muutoksen ja mahdollisten lisätarvikkeiden hintavaikutus selviää vasta toteutusvaiheessa.

Myös nurkkatyypillä on merkitystä hirsimäärään. Tavallinen ristinurkka vaatii enemmän hirsimetrejä, koska myös nurkkaylitysten toteuttamiseen tarvitaan hirsiaihoita. Lohenpyrstösalvoksien kohdalla hirsimäärä tavallisesti hieman vähenee, koska nurkkaylityksiin ei mene puutavaraa.

Mikäli olet kiinnostunut tilaamaan rakennuksen vaihtoehtoisista hirsivahvuuksista, pyydämme olemaan yhteydessä myyntipalveluumme. Hirsivahvuuksien muuttamiseen löytyy tavanomaisesti kyllä ratkaisuja ja myyntipalvelumme osaa usein arvioida muutoksien vaikutukset rakennuskohtaisesti.