Vierasmökki Koskelo - Luonnosmalli

3775 € (Hirsitoimitus 70x145)

Lisätarvikkeiden hinnat myyntipalvelun kautta
(eli ovi- ja ikkunatoimitus, muun puutavara, vesikate ja mahdolliset eristyspaketit)

(Osalla tuotesivuista voi olla lueteltuna aiempia toimitussisältöjä, vaikka lähtöhintaan kuuluukin vain hirsitoimitus)

Lyhyt tuotekuvaus:

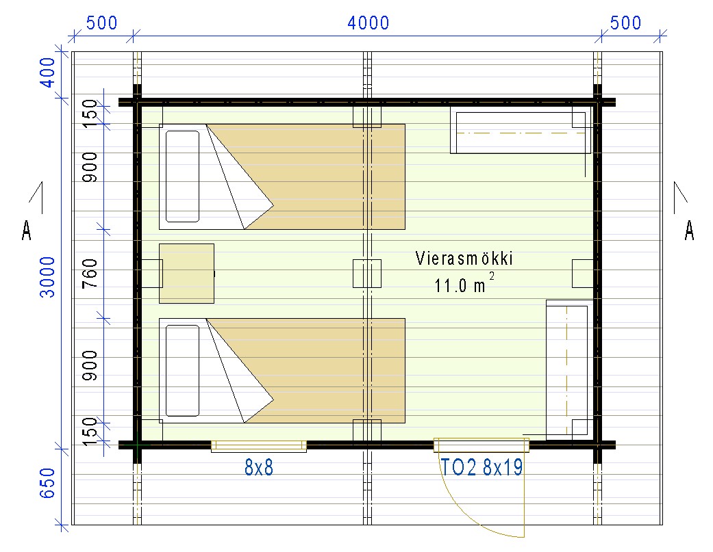
Pieni vierasmökki 70 mm hirrestä

Kerrosala 12 m2.

Vierasmökki Koskelo

Vierasmökki Koskelo on ásiakkaan toiveesta piirretty luonnosversio.

Lisätiedot

log_profile
70x145
log_meters
288.9
3DS_malli
koskelo-1-70

Hirsitoimituksen sisältö

Nettihirren kaikki rakennukset on mahdollista tilata myös pelkkänä hirsitoimituksena. Hirsitoimitukseen kuuluu aina tavanomainen suunnittelu ja itse hirsitoimitus

Suunnittelu

  • Rakennuslupakuvista seuraavat:
    • Julkisivukuvat
    • Leikkauskuva
    • Pohjakuva
  • Perustuspilareiden sijoittelu pilariperustukselle
  • Seinäkohtaiset hirsikuvat
  • Pystytysohjeet

Asemapiirustuksen teko ja mahdolliset maaperään liittyvät perustussuunnitelman jäävät asiakkaan vastuulle.

Hirsitoimitus 70x145 höylähirsiprofiilille

  • Valmiiksi salvostetut hirret 70x145 höylähirrestä ristinurkkasalvoksilla
  • Hirret on katkottu määrämittoihin suorakulmaisin päin
  • Päätykolmioiden viisteet ja hirsien mahdolliset koristeviisteet tehdään työmaalla
  • Sisältää tarvittavat poraukset vaarnatapeille ovien ja ikkunoiden reunoihin rakenteen salliessa
  • Tarvittavat vaarnatapit esiporauksiin
  • Tarvittavat kierretangot ja niille poraukset
  • Jos rakennuksessa on pitkiä hirsiä (yli 8m), tehdään hirsien jatkokset salvosten sisään työmaalla

Hirsitoimitus ei sisällä lueteltujen tarvikkeiden lisäksi muita osia, kuten nauloja, ruuveja tai perustustarvikkeita. Ovet ja ikkunat, muu puutavara ja muut tarvikkeet tilataan lisätilauksena verkkokaupan valikoista tai erikseen lisätilauksena myyntipalvelustamme.

Hirret pakataan muoveihin ja toimitukset ovat kevyesti säänkestäviä lyhytaikaista ulkosäilytystä varten. Pidempiaikaista säilytystä varten niput on suojattava erikseen

Osassa 70x145 hirsiprofiilin suunnitelmia rakennukset on suunniteltu ilman karauria. Varmista myyntipalvelusta rakennuksen tekninen toteutustapa

70x145 hirsiprofiilien toimituksiin sisältyy rahti Kaukokiidon terminaaliin Vantaalle. Terminaalista eteenpäin muodostuvat rahtikulut veloitetaan asiakkaalta toteutuneen kustannuksen perusteella läpilaskuna kertoimella 1.1


3D Malli

Rakennuksesta löytyy 3D-malli, jota voit pyöritellä ja tarkastella vapaasti. Voit myös avata mallin omaan ikkunaan alla olevasta linkistä.
Avaa 3D-malli omaan ikkunaan.


Kehikon hirsimäärä

Kehikossa on tällä hetkellä nykyprofiililla hirsiä 288.9 metriä.

Jos kaikki hirret asetettaisiin yhtenäiseksi seinäpinnaksi, syntyvän seinäpinnan koko olisi neliöinä 38.13 m2. Tätä neliömäärää käytetään kustannusten arvioimisen lähtökohtana tilanteissa, joissa hirsikehikko halutaan hankkia erilaisesta hirsiprofiilista.

Hirsikehikon arvioidut hinnat vaihtoehtoisille hirsivahvuuksille

Rakennuksemme voidaan toteuttaa myös erilaisista hirsivahvuuksista. Tämän rakennuksen hirsikehikon hinta olisi ollut eri hirsiprofiilien ja nurkkatyyppien kohdalla karkeasti laskettuna seuraava:

58 mm massiivihirsi (58x145)
  • 2860 euroa ristinurkkasalvoksella.

70 mm massiivihirsi (70x145)
  • 3775 euroa ristinurkkasalvoksella.
92 mm massiivihirsi (92x170)
  • 4881 euroa ristinurkkasalvoksella.
90 mm lamellihirsi (90x195)
  • 5377 euroa ristinurkkasalvoksella.
  • 5915 euroa lohenpyrstösalvoksella.
136 mm lamellihirsi (136x244)
  • 9076 euroa ristinurkkasalvoksella.
  • 9984 euroa lohenpyrstösalvoksella.
204 mm lamellihirsi (204x244)
  • 12394 euroa ristinurkkasalvoksella.
  • 13633 euroa lohenpyrstösalvoksella.

Vaihtoehtoisten hirsivahvuuksien hintojen arvio perustuu oletukseen, että hirsivahvuuden muutos ei vaikuttaisi tarvittavaan hirsimäärään seinäneliöinä laskettuna.

hirsiprofiilin muuttuessa rakennusta joudutaan kuitenkin tavanomaisesti hieman muuttamaan. Muutoksia voi syntyä esimerkiksi seinäkorkeuksiin, kattokulmiin, kantavien rakenteiden vahvuuksiin ja terassiosien muotoiluihin. Arviohinnoissa ei ole huomioitu myöskään muita tarvikkeita, kuten joissakin hirsikehikoissa tarvittavia liimapuupalkkeja tai pilareita.

Tästä syystä arvioidut hinnat ovat suuruusluokaltaan oikeita, mutta hirsimäärän muutoksen ja mahdollisten lisätarvikkeiden hintavaikutus selviää vasta toteutusvaiheessa.

Myös nurkkatyypillä on merkitystä hirsimäärään. Tavallinen ristinurkka vaatii enemmän hirsimetrejä, koska myös nurkkaylitysten toteuttamiseen tarvitaan hirsiaihoita. Lohenpyrstösalvoksien kohdalla hirsimäärä tavallisesti hieman vähenee, koska nurkkaylityksiin ei mene puutavaraa.

Mikäli olet kiinnostunut tilaamaan rakennuksen vaihtoehtoisista hirsivahvuuksista, pyydämme olemaan yhteydessä myyntipalveluumme. Hirsivahvuuksien muuttamiseen löytyy tavanomaisesti kyllä ratkaisuja ja myyntipalvelumme osaa usein arvioida muutoksien vaikutukset rakennuskohtaisesti.